Новый микрорайон из 195 частных домов появится в Кстовском районе к 2036 году

Рынок недвижимости
46
0

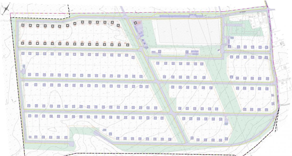
Микрорайон из 195 частных домов планируется построить в Кстовском районе через 10 лет. Изменения в проект планировки и межевания территории утверждены Минградом Нижегородской области 16 декабря.

Новый микрорайон из 195 частных домов появится в Кстовском районе к 2036 году - фото 1
Фото: Научно-производственное предприятие «Инженер»/ mingrad.nobl.ru

Проект разработан Научно-производственным предприятием «Инженер» по заказу администрации Кстовского района.

Новый коттеджный поселок расположится в западной части деревни Подлесово на площади 41,1 га и будет разделен на пять кварталов. Микрорайон будет состоять из одно- и двухэтажных частных домов площадью 198 кв. м, предназначенных для многодетных семей. Также тут построят два магазина, предприятие бытового обслуживания и похоронное бюро рядом с кладбищем. К слову, изначально на месте будущего бюро планировалось открыть заведение общепита, но этот пункт был изменен в откорректированной документации. Также изменения коснулись сроков строительства.

На территории будущего поселка проложат главную дорогу протяженностью 1,8 км, второстепенные проезжие части в 3,7 км, тротуары и велодорожки. Кроме того, будут построены локальные очистные сооружения, парковки, детские и спортивные площадки.

Ранее ДОМОСТРОЙНН.РУ сообщал, что в деревне Черемисское Кстовского района построят детский сад на 240 мест. Соответствующее разрешение уже выдано.

Самые интересные новости портала ДОМОСТРОЙРФ.РУ читайте в Telegram и ВКонтакте.

Комментарии

Добавляя комментарий, вы соглашаетесь с правилами
Узнай о действующих спецпредложениях от застройщиков