Выбрать другой город
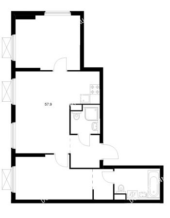
2 комнатная квартира 57,9 м² в ЖК Савин парк, дом корпус 10

Подробнее о квартире

Площадь
57,9 м²
Жилая
24,3 м²
Кухня
Этаж
5 из 25
Срок сдачи
4 кв. 2026
Стоимость
8 632 890 ₽
Отделка
Под ключ
Потолок
2,62 - 4,03 м
Класс дома
Стандарт
Номер квартиры
55
Номер подъезда
1
Дом
ЖК
Застройщик
Сайт ЖК

Местоположение и инфраструктура

2026г
2026г
Появились вопросы? Позвоните застройщику
Показать телефон

Похожие квартиры

Такая же площадь, но дешевле
В этом ЖК
7,7 - 8,4 млн ₽
Больше площадь по той же цене
В этом доме
8,9 - 9,0 млн ₽
В этом ЖК
8,4 - 9,0 млн ₽
Отделка под ключЗастройщик передает дольщикам квартиры со 100% отделкой. Вам не придется тратить время и средства на ремонт.

Ипотечный калькулятор

Предложения банков
21 %
от 105958 ₽
30 лет
Сумма кредита
6043023
Переплата
32101857
Выплаты всего
38144880
Одна заявка во все банки

Отзывы

Добавляя комментарий, вы соглашаетесь с правилами
Александр
Где подписать договор?
Окси
Мне нравятся большие окна. Вид из окна будет тоже классный. Но! Огромные ЛЭП ПРЯМО РЯДОМ С ДОМАМИ МЕНЯ ПУГАЮТ. КАК РАЗРЕШАЮТ СТРОИТЕЛЬСТВО В ТАКИХ МЕСТАХ?
Константин
На перспективу - норм. Район будут застраивать, транспорт пустят, инфру разовьют и цена поднимется. Но ближайшие лет 5 жить там будет туговато. Если только со своей машиной, тогда норм. Жду строительство развязки.
Владимир
Выбрал квартиру с готовой отделкой в 3 корпусе. Не хочу заморачиваться с ремонтом. Это долго и дорого сейчас. Единственное, интересно, будет ли тёплым балкон? Хотел бы там сделать кабинет.
Валентин
Взяли в ипотеку, двушка за 19 тыс в месяц под 6,8%. Купили сейчас, пока цена опять не поднялась.
Посмотреть все
Позвонить Написать